Terraced house في تخفيض السعر إلى Quattro Castella

في تخفيض السعر
Terraced house
Quattro Castella
260,000 €
الخصائص الرئيسية
شفرة:
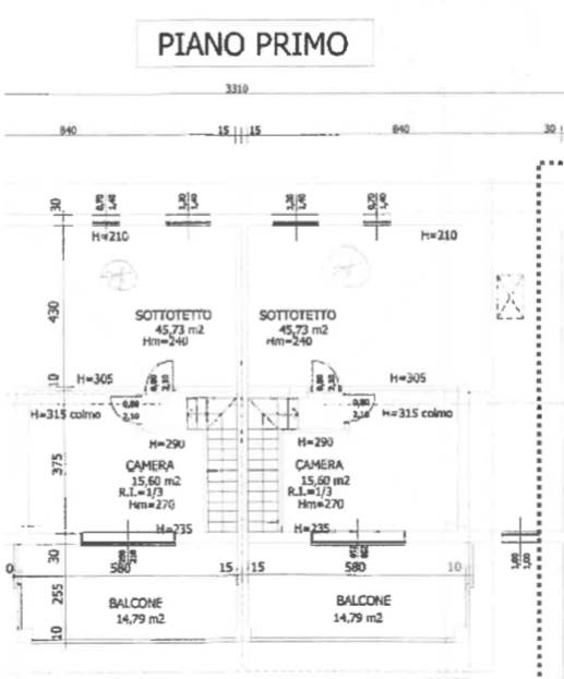
108/2017 1 RE
مدينة:
Quattro Castella
فئة:
Terraced house
السكان المحليون:
6.5
غرف:
3
الحمامات:
3
متر مربع:
128
كراج:
1
مربع متر مربع:
57
مساحات وقوف السيارات:
1
Sqm Garden:
145
شرفات:
1
بلكونة متر مربع:
4
أرضية:
تحت الارض
تصنيف الطاقة:
E
موقع ثابت:
جيد
درجة:
متوسط
تدفئة:
مستقل
يوم الأرض:
كوتو
أرضية المطبخ:
الخزف
حمام الطابق:
صناعة الخزف
مُكَمِّلات
خريطة
Via Prampolini, 20/2 - Quattro Castella (RE)
جولة افتراضية
فيديو
Cookie preference