Apartment في تخفيض السعر إلى Bologna

في تخفيض السعر
Apartment
Bologna
197,000 €
الخصائص الرئيسية
شفرة:
62/2024 9857 BO
مدينة:
Bologna
فئة:
Apartment
السكان المحليون:
5.5
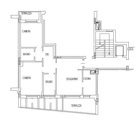
غرف:
2
الحمامات:
2
متر مربع:
84
المدرجات:
2
تراس متر مربع:
13.5
أرضية:
1
تصنيف الطاقة:
C
موقع ثابت:
غير واضحة حالة
درجة:
إقتصادي
بانوراما:
مطلة على الحديقة
توجيه:
الشمال الشرقي
حديقة:
مشترك
تدفئة:
مستقل
نوع النبات:
مشعات التدفئة
مُكَمِّلات
خريطة
Via dei maceri, 12 - Bologna (BO)
جولة افتراضية
فيديو
خطط المبنى
Cookie preference