Villetta schiera in Vendita a Nonantola (MO)

In vendita
Villetta schiera
Nonantola
223.400 €
Descrizione
Nel cuore del suggestivo comune di Nonantola, nella provincia di Modena, sorge una bellissima villetta a schiera che si prepara ad essere messa all'asta. Situata in Via Camillo Benso di Cavour, questa abitazione vanta una posizione strategica, circondata dalla tranquillità ma vicina a tutti i principali servizi e comodità che la cittadina ha da offrire.

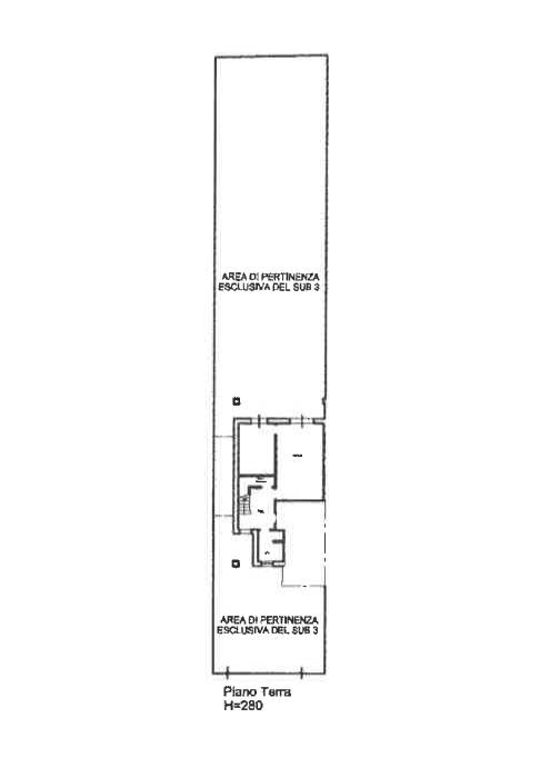
La villetta si sviluppa su una superficie di 140 metri quadrati distribuiti su due piani per l'abitazione, che vanta 7,5 vani, più aree cortilive di pertinenza e un'autorimessa. Al piano terra troviamo un luminoso soggiorno, una cucina abitabile e un bagno, mentre al piano superiore sono presenti tre accoglienti camere da letto e un ulteriore bagno. Gli spazi sono ben distribuiti e curati, garantendo comfort e funzionalità. Gli interni si presentano con finiture di pregio e materiali di alta qualità.

Il prezzo conveniente di 223.400 EUR rende questa un'occasione da non perdere per chi è alla ricerca di una nuova casa nella splendida e suggestiva campagna modenese.

Data dell’asta: 10/12/2025.

Prenota una consulenza con il nostro referente, per trovare l'occasione che fa al caso tuo e anche per ottenere il miglior servizio mutuo con le nostre banche partner.

L'esattezza di tutti i dati pubblicati sarà confermata in sede di consulenza.
Foto e planimetrie consultabili presso le nostre sedi.

Visita il nostro sito

Aste Generali
Società n°1 in Italia nel settore immobiliare.

astegenerali.com
Caratteristiche principali
Codice:
103/2021 23 MO
Città:
Nonantola
Categoria:
Villetta schiera
Locali:
7,5
Camere:
3
Bagni:
2
Mq:
140,3
Box:
1
Mq Box:
20,5
Mq Giardino:
213,5
Balconi:
2
Mq Balcone:
15
Piano:
Terra
Classe energetica:
G
Stato Immobile:
Buono
Grado:
Medio
Posizione:
Centro
Riscaldamento:
Autonomo
Infissi:
Legno
Accessori
Impianto Fotovoltaico
Inferriate
Ingresso Indipendente
Passaggio Automobilistico
Passaggio Pedonale
Porta Blindata
Ripostiglio
Video Citofono
Mappa
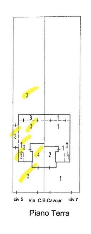
Via Camillo Benso di Cavour, 5 - Nonantola (MO)
Virtual tour
Video
Cookie preference