Appartamento in asta a Finale Emilia (MO)

In vendita
Appartamento
Finale Emilia
43.875 €
Descrizione
Appartamento in asta situato nel comune di Finale Emilia, provincia di Modena, Italia. Questa affascinante proprietà si trova in Viale della Resistenza ed è caratterizzata da un prezzo di partenza molto conveniente: soli 43.875 euro.

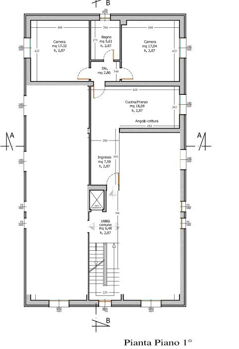
L'appartamento si sviluppa su una superficie di 85 metri quadrati ed è composto da ingresso, cucina/pranzo con angolo cottura, n.2 camere, un servizio igienico, disimpegno. L'ambiente luminoso e ben distribuito offre agli acquirenti la possibilità di personalizzare gli spazi secondo le proprie esigenze e gusti.

La zona circostante è tranquilla e ben servita, ideale per chi desidera vivere in un contesto residenziale ma comunque a pochi passi da tutti i principali servizi e negozi. Inoltre, la posizione strategica permette di raggiungere facilmente le principali arterie stradali e i mezzi pubblici per spostarsi comodamente in tutta la zona.

Questa è un'opportunità unica per chi è in cerca di un immobile dal prezzo conveniente e con grandi potenzialità di valorizzazione. Non perdere l'occasione di aggiudicarti questo appartamento e trasformarlo nel tuo rifugio ideale a Finale Emilia.
Prenota una consulenza con il nostro referente, per trovare l'occasione che fa al caso tuo e anche per ottenere il miglior servizio mutuo con le nostre banche partner.

L'esattezza di tutti i dati pubblicati sarà confermata in sede di consulenza.
Foto e planimetrie consultabili presso le nostre sedi.

Visita il nostro sito

Data asta;30/12/2025

Aste Generali
Società n°1 in Italia nel settore immobiliare.

astegenerali.com
Caratteristiche principali
Codice:
134/2023 1 MO
Città:
Finale Emilia
Categoria:
Appartamento
Locali:
4
Camere:
2
Bagni:
1
Mq:
85
Box:
1
Mq Box:
12
Piano:
1
Classe energetica:
G
Stato Immobile:
Buono
Grado:
Economico
Riscaldamento:
Autonomo
Tipo Riscaldam.:
Caldaia
Tipo Impianto:
Pavimento
Accessori
Aria Condizionata
Parco Condominiale
Passaggio Automobilistico
Passaggio Pedonale
Porta Blindata
Ripostiglio
Mappa
Viale della Resistenza, 20 - Finale Emilia (MO)
Virtual tour
Video
Planimetrie
Cookie preference