Villa in asta a Zola Predosa (BO)

In vendita
Villa
Zola Predosa
930.000 €
Descrizione
La villa in asta situata nel comune di Zola Predosa, in Via Predosa, rappresenta un'elegante residenza di 15,5 vani, con una superficie di 619mq. Caratterizzata da uno stile architettonico raffinato e da ampi spazi interni, la proprietà si compone di due camere da letto e due bagni, offrendo il massimo comfort e privacy ai suoi abitanti.

L'immobile si presenta in ottime condizioni e vanta una posizione privilegiata, immersa nel verde della campagna bolognese ma al contempo vicina ai principali servizi e alle comodità della città. Il prezzo di 697.500 euro rende questa villa un'opportunità unica per chi desidera vivere in un ambiente esclusivo e ben curato.
La villa si eleva su due piani fuori Terra oltre ad un piano Interrato,
a al piano Terra di Ingresso, ampio locale ad uso Soggiorno-Salotto e contiguo Portico, Cucina abitabile, Ripostiglio, due Camere a tipologia matrimoniale dotate entrambe di Bagno e guardaroba ad uso esclusivo ed infine un ulteriore Bagno debitamente disimpegnato; al piano Sottotetto risultano realizzati un’ ampio Soggiorno, Cucina, Bagno debitamente disimpegnato, Camera ed infine locale, Al piano Interrato dell’edificio risultano ubicati ampia Autorimessa.

Non lasciarti sfuggire l'occasione di acquistare una villa di prestigio a Zola Predosa e godere della bellezza e della tranquillità della vita di campagna, a pochi passi da Bologna.Prenota una consulenza con il nostro referente, per trovare l'occasione che fa al caso tuo e anche per ottenere il miglior servizio mutuo con le nostre banche partner.

L'esattezza di tutti i dati pubblicati sarà confermata in sede di consulenza.
Foto e planimetrie consultabili presso le nostre sedi.

Visita il nostro sito

Data asta;02/12/2025

Aste Generali
Società n°1 in Italia nel settore immobiliare.

astegenerali.com
Caratteristiche principali
Codice:
180/2020 U BO
Città:
Zola Predosa
Categoria:
Villa
Locali:
15,5
Camere:
2
Bagni:
2
Mq:
619
Box:
1
Mq Box:
86
Piano:
1
Classe energetica:
F
Stato Immobile:
Ottimo
Grado:
Signorile
Riscaldamento:
Autonomo
Accessori
Ingresso Indipendente
Lavanderia
Parco Condominiale
Passaggio Automobilistico
Passaggio Pedonale
Piscina
Porta Blindata
Ripostiglio
Mappa
Via Predosa, 90 - Zola Predosa (BO)
Virtual tour
Video
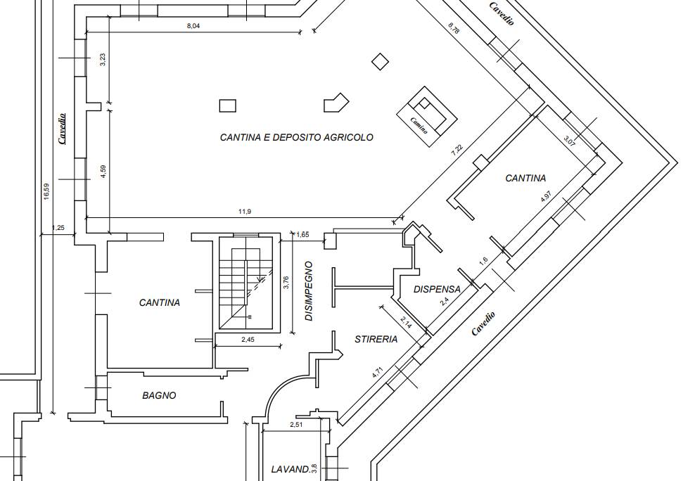
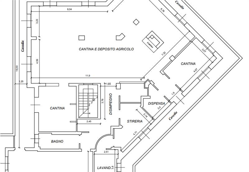
Planimetrie
Cookie preference