Appartamento in Vendita a San Lazzaro di Savena (BO)

In vendita
Appartamento
San Lazzaro di Savena
249.000 €
Descrizione
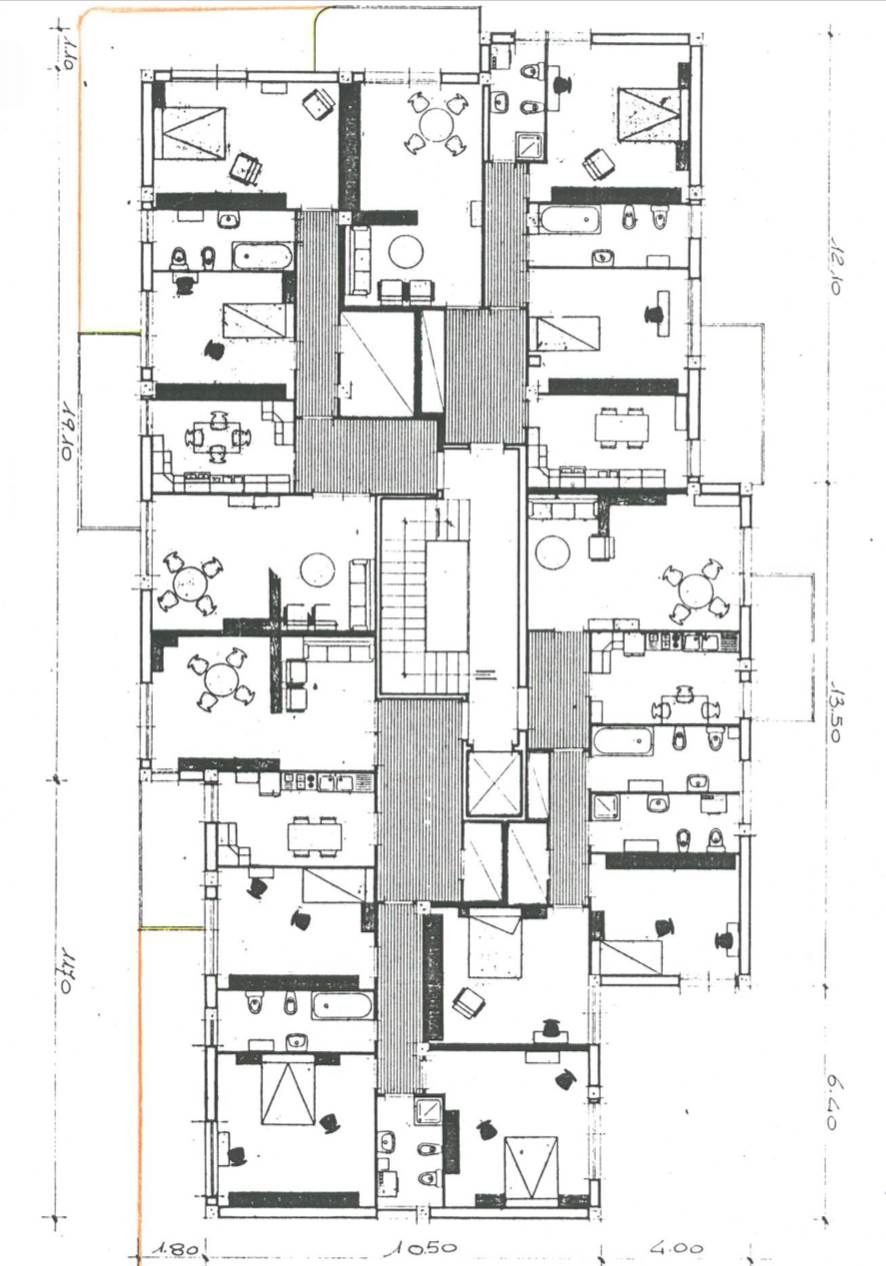
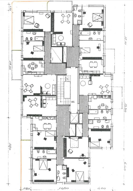
Questo incantevole appartamento in asta si trova nel comune di San Lazzaro di Savena, a soli pochi chilometri dal cuore di Bologna. Situato in via Poggi, questo immobile di 104 metri quadrati offre uno spazio abitativo luminoso e accogliente, perfetto per una famiglia o una coppia in cerca di un nuovo rifugio.

L'appartamento dispone di cinque vani, tra cui due camere da letto spaziose e ben illuminate, perfette per rilassarsi dopo una lunga giornata. Il bagno è moderno e funzionale.

La cucina è ampia e completamente attrezzata, ideale per preparare deliziosi pasti da gustare nella zona pranzo adiacente. Il soggiorno è accogliente e luminoso, perfetto per trascorrere piacevoli serate in compagnia di amici e familiari.

L’immobile dispone di autorimessa.

Il prezzo di 186.750 euro rende questo appartamento un'affare imperdibile, considerando la sua posizione ideale e le sue caratteristiche uniche. Non lasciarti sfuggire l'opportunità di acquistare questo delizioso appartamento e inizia la tua nuova vita a San Lazzaro di Savena.

Data dell’asta: 04/12/2025

Prenota una consulenza con il nostro referente, per trovare l'occasione che fa al caso tuo e anche per ottenere il miglior servizio mutuo con le nostre banche partner.

L'esattezza di tutti i dati pubblicati sarà confermata in sede di consulenza.
Foto e planimetrie consultabili presso le nostre sedi.

Visita il nostro sito

Aste Generali
Società n°1 in Italia nel settore immobiliare.

astegenerali.com
Caratteristiche principali
Codice:
263/2024 9775 BO
Città:
San Lazzaro di Savena
Categoria:
Appartamento
Locali:
5
Camere:
2
Bagni:
1
Mq:
104
Mq Box:
14
Balconi:
1
Mq Balcone:
20
Piano:
1
Classe energetica:
D
Stato Immobile:
Buono
Grado:
Medio
Riscaldamento:
Centralizzato
Pavim. Giorno:
Marmo
Pavim. Bagno:
Ceramica
Accessori
Aria Condizionata
Passaggio Automobilistico
Passaggio Pedonale
Porta Blindata
Ripostiglio
Mappa
via Poggi, 38 - San Lazzaro di Savena (BO)
Virtual tour
Video
Planimetrie
Cookie preference