Appartamento in Vendita a Bologna (BO)

In vendita
Appartamento
Bologna
210.000 €
Descrizione
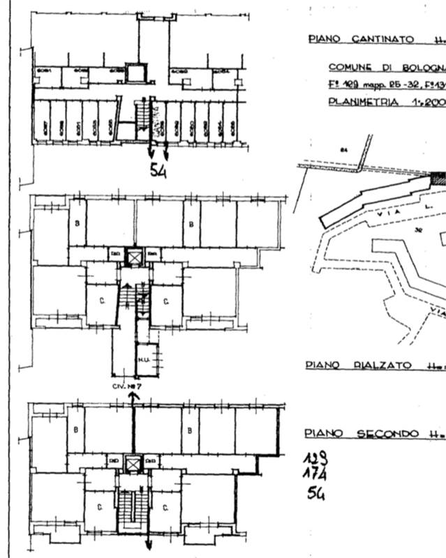
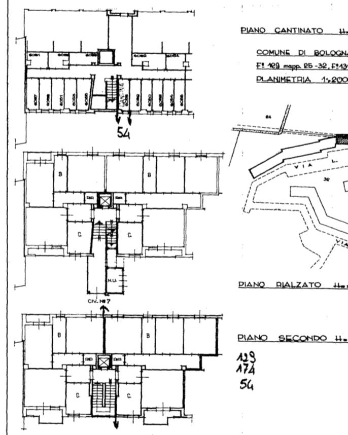
Inserito in un contesto residenziale tranquillo e ben servito, l'appartamento in asta situato nel comune di Bologna, rappresenta un'ottima opportunità per chi desidera acquistare una casa spaziosa e luminosa a un prezzo vantaggioso. Con una superficie di 105 mq, l'immobile si compone di 6,5 vani, tra cui tre camere da letto e un bagno.

L'ingresso si apre su un ampio soggiorno, ideale per accogliere familiari e amici, mentre la cucina abitabile permette di preparare pasti in compagnia. Le 3 camere da letto sono ampie e luminose, offrendo spazi confortevoli e personalizzabili.

Il bagno, è funzionale e ben curato. L'appartamento dispone anche di un balcone, ideale per godersi momenti di relax all'aria aperta e per godere della vista sulla città.

La zona circostante offre tutti i servizi necessari per una vita comoda e praticità di spostamento, grazie alla presenza di mezzi pubblici e negozi di ogni genere. Il prezzo di 157.500 EUR rende questa proprietà un'occasione imperdibile per chi cerca un'appartamento spazioso e ben tenuto a Bologna.

Data dell’asta: 04/12/2025

Prenota una consulenza con il nostro referente, per trovare l'occasione che fa al caso tuo e anche per ottenere il miglior servizio mutuo con le nostre banche partner.

L'esattezza di tutti i dati pubblicati sarà confermata in sede di consulenza.
Foto e planimetrie consultabili presso le nostre sedi.

Visita il nostro sito

Aste Generali
Società n°1 in Italia nel settore immobiliare.

astegenerali.com
Caratteristiche principali
Codice:
269/2024 9812 BO
Città:
Bologna
Categoria:
Appartamento
Locali:
6,5
Camere:
3
Bagni:
1
Mq:
105
Balconi:
1
Mq Balcone:
7
Piano:
2
Classe energetica:
C
Stato Immobile:
Buono
Grado:
Medio
Riscaldamento:
Centralizzato
Pavim. Giorno:
Gres Porcellanato
Pavim. Notte:
Gres Porcellanato
Accessori
Doppi Vetri
Passaggio Pedonale
Porta Blindata
Ripostiglio
Mappa
Via lodovico frati, 7 - Bologna (BO)
Virtual tour
Video
Planimetrie
Cookie preference