Terreno Agricolo in Vendita a San Prospero (MO)

In vendita
Terreno Agricolo
San Prospero
735.000 €
Descrizione
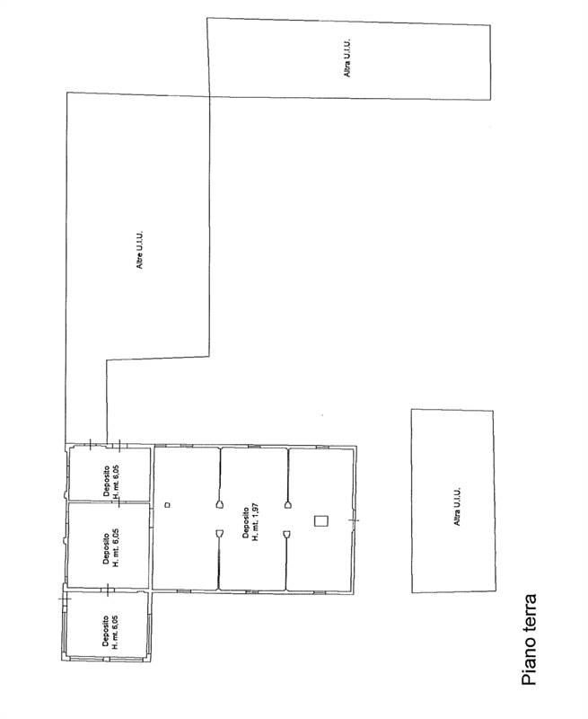
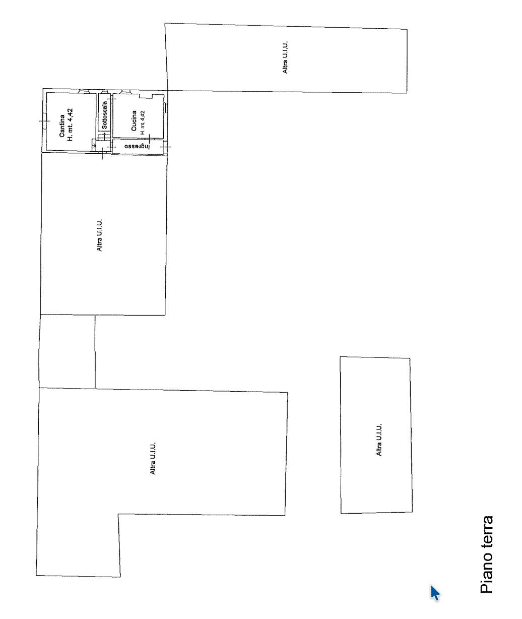
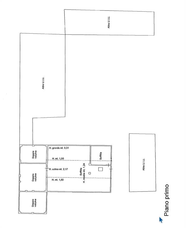
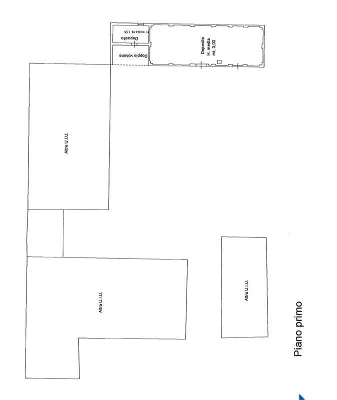
Il complesso agricolo in asta nel comune di San Prospero, situato nella provincia di Modena, rappresenta un'occasione molto interessante per gli amanti della natura e dell'agricoltura. Con una vasta superficie, questo immobile, che include anche un'abitazione, cantine e depositi, ha inoltre terreni di pertinenza agricoli ed edificabili, ideali per svolgervi le proprie attività o semplicemente godere della bellezza della campagna italiana. Una parte di terreni edificabili è soggetta a convenzione.

La proprietà richiede una completa ristrutturazione, questo aspetto può rendere l'affare più vantaggioso. Inoltre, Il terreno è adatto per coltivazioni di vario genere, è infatti possibile sfruttare al meglio le risorse naturali di questa zona.

Il paesaggio circostante è caratterizzato da dolci colline e campi coltivati, proponendo un ambiente tranquillo e rilassante per chi cerca una fuga dalla vita frenetica della città. Nonostante ciò, si può apprezzare la prossimità al centro di San Prospero.

Il prezzo di 735.000 EUR costituisce senza dubbio un ottimo investimento per fini agricoli. Non lasciarti sfuggire questa opportunità unica di acquistare un pezzo di terra in uno dei luoghi più suggestivi d'Italia, dove la tradizione agricola si mescola alla modernità in un connubio perfetto.

Data dell’asta: 18/12/2025

Prenota una consulenza con il nostro referente, per trovare l'occasione che fa al caso tuo e anche per ottenere il miglior servizio mutuo con le nostre banche partner.

L'esattezza di tutti i dati pubblicati sarà confermata in sede di consulenza.
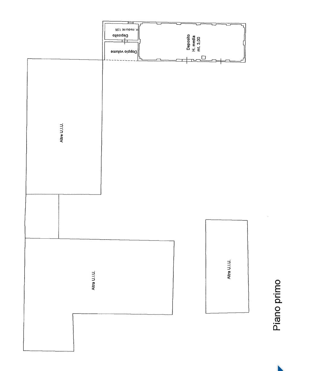
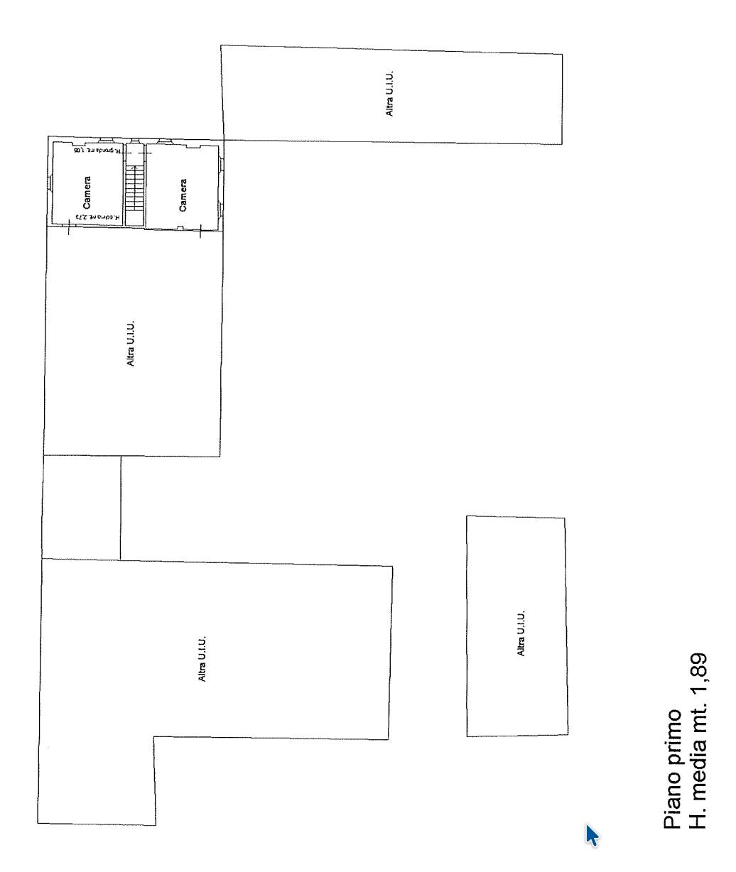
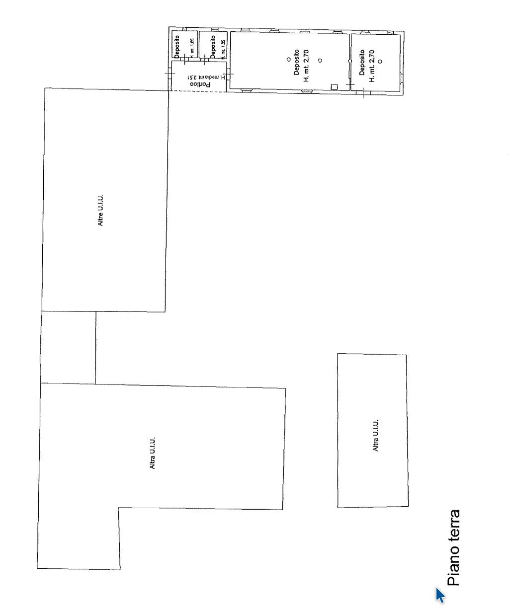
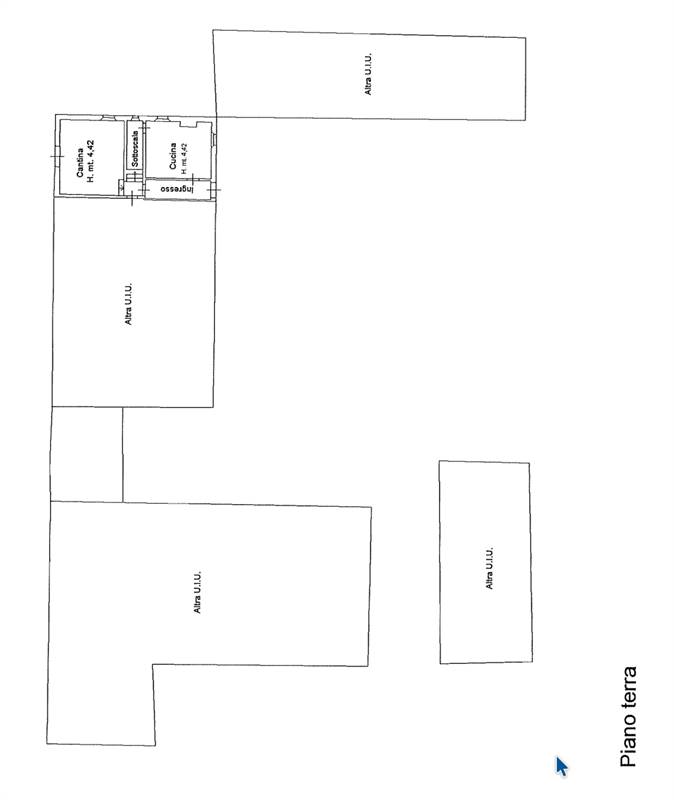
Foto e planimetrie consultabili presso le nostre sedi.

Visita il nostro sito

Aste Generali
Società n°1 in Italia nel settore immobiliare.

astegenerali.com
Caratteristiche principali
Codice:
304/2022 2 MO
Città:
San Prospero
Categoria:
Terreno Agricolo
Locali:
10
Mq:
890
Classe energetica:
G
Stato Immobile:
Da Ristrutturare
Grado:
Signorile
Posizione:
Periferia
Accessori
Passaggio Automobilistico
Passaggio Pedonale
Mappa
Via Viazza, 109 - San Prospero (MO)
Virtual tour
Video
Cookie preference