Flat Sale in Polinago (MO) Via Valrossenna, 41040 Polinago MO, Italia 61

for sale
Apartment
Polinago
52,000 €
Description
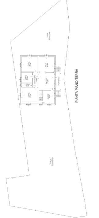
The apartment up for auction located in the municipality of Polinago, province of Modena, Italy, offers a unique opportunity for those seeking a spacious and affordable housing solution. Located on Via Valrossenna, the property covers an area of 135 square meters.

The apartment is comprised of a living/dining room, kitchen, 3 bedrooms, bathroom, hallway, cellar (basement), attic (first floor), and garage (basement). It also includes an exclusive courtyard area and 8 agricultural plots totaling approximately 4.79 hectares.

The central location of the residence allows for easy access to services, shops, and public transportation, ensuring convenience and practicality in daily life. With a price of 39,000 euros, this property is an affordable opportunity for anyone looking to purchase a home in a quiet and well-connected area.

In summary, the apartment up for auction in Polinago is an opportunity not to be missed for those seeking a spacious, bright, and affordable property in one of the most sought-after locations in the province of Modena. Book a consultation with our representative to find the opportunity that suits you best and to obtain the best mortgage service with our partner banks.

The accuracy of all published data will be confirmed during the consultation. Photos and floor plans are available at our offices. Visit our website. Auction date: 12/18/2025. Aste Generali: The number one company in Italy in the real estate sector. Visit astegenerali.com.
Primal Features
Code:
243/2023 U MO
City:
Polinago
Category:
Apartment
Locals:
8
Bedrooms:
3
Bathrooms:
1
Sqm:
135
Garages:
4
Sqm garage:
40
Floor:
1
Energetic class:
G
Property Conditions:
To Be Renovated
Rank:
Cheap
Accessories
Independent Entrance
Park Condominium
Passing Car
Pedestrian Crossing
Armored door
Closet
Map
Via Valrossenna, 41040 Polinago MO, Italia, 61 - Polinago (MO)
Virtual tour
Video
Cookie preference